北京市朝阳区七棵树创意园B2-3中海天意装饰  专注服务于业主        咨询热线: 13501038866 丨17810223650

当前位置: 首页 > 设计案例
中国房子
【设计心得】

中国房子现代简介

【别墅信息】
  • 楼盘:张树欣设计案例
  • 风格:现代简约
  • 面积:130㎡

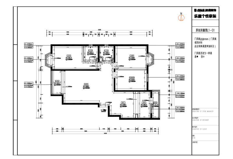
原始测量图原始测量图.jpg

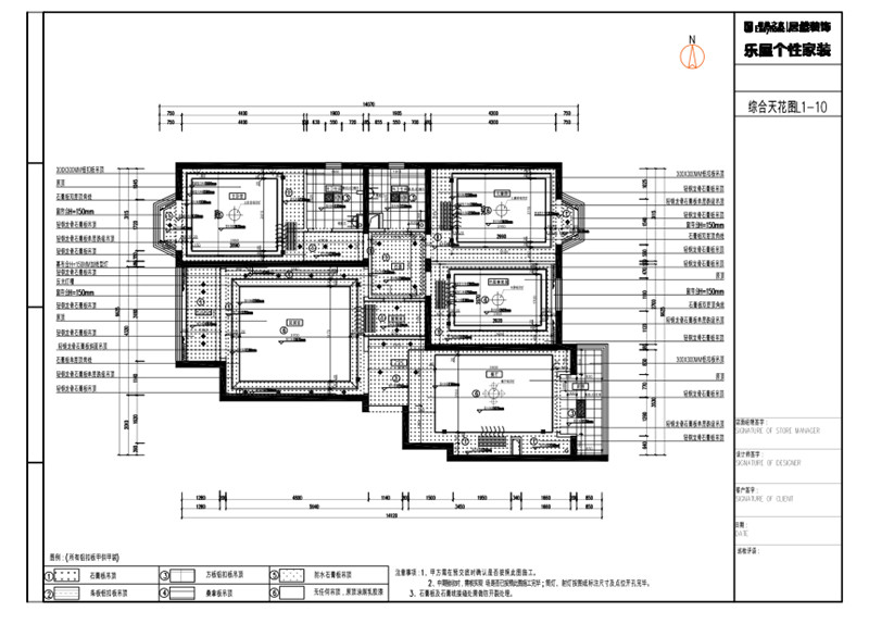
天花布置图天花布置图.jpg

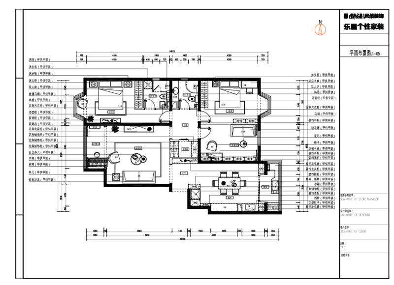
平面布置图平面布置图.jpg

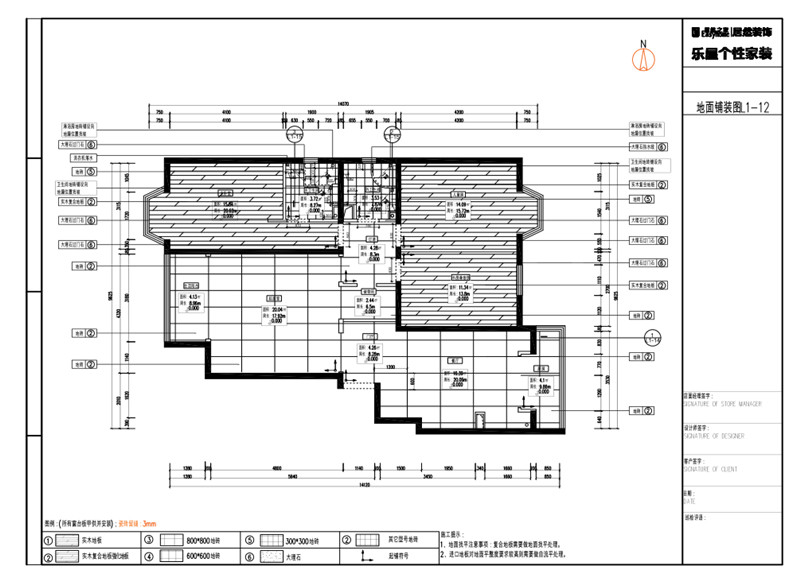
地面铺装图地面铺装图.jpg

客厅

餐厅

主卧室

次卧室


预约该案例老师 +

张树欣

在线预约

申请全案设计方案

2-3套设计方案

*设计师会在3分钟内与你取得联系!
相关案例
  • 中国房子

    张树欣设计案例
    现代简约
    130
  • 远洋风景

    张树欣设计案例
    现代简约
  • 御汤山溪园

    张树欣设计案例
    简欧风格
  • 别墅全案设计

    从全局规划 到家品细节我们为您量身定制